Bewertung gespeichert!
Diese Info sehen nur Sie
Kommentar gespeichert!
Fügen Sie eine bewertung bzw. Einen Kommentar zu dieser Anzeige hinzu. Nurfür Sie sichtbar

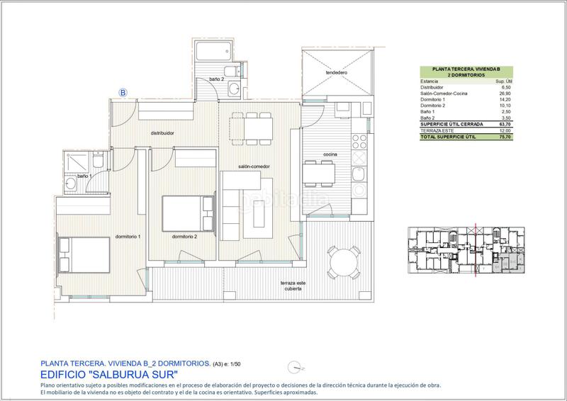
Etagenwohnung 75m2 in las neveras kalea 2 in Salburua - Arantzabela Vitoria - Gasteiz

  • von 75 m2
  • 2 hab.
  • 2 Badezimmer
  • 3.933 €/m2
Edificio Salburua Sur , Fase 2
Teil des Neubauprojekts

Edificio Salburua Sur , Fase 2

Esta promoción tiene 16 tipos de wohnungen Projekt anzeigen

Promoción de Viviendas Libres de 1, 2 y 3 dormitorios. Al igual que la Fase 1 de esta promoción, nace como respuesta a aquellos que buscan una vivienda con gran terraza, buena orientación, en una ubicación rodeada de zonas verdes y con urbanización privada, pero sin renunciar a la cercanía de todos los servicios, colegios y comunicación con el Centro de la ciudad.

La características principales de la Fase 2 del Edificio Salburua Sur, son sus grandes terrazas de 15 a 20 m², así como las grandes terrazas solarium de más de 60 m² en áticos. Todas las viviendas tienen doble orientación, ya sea con disposición en esquina o pasante con fachadas enfrentadas.

Dispone de Trasteros de 12 m2 y gran altura en planta baja y plazas de garaje individuales y dobles en sótano.

Todas las viviendas disponen de cocina independiente, existiendo la posibilidad de unir al salón si se desea para tener una gran estancia principal.

Todas las viviendas, incluso las de 1 y 2 dormitorios, disponen de 2 Baños completos.
Edificio con pisos totalmente exteriores de construcción tradicional con fachada de ladrillo cara vista , e interiores con ladrillo tradicional.

El Edificio Salburua Sur cuenta con una urbanización privada y se sitúa frente a un gran parque urbano con juegos infantiles y muy cómodo para aquellos que tienen mascotas.
Una de las ventajas del Edificio Salburua Sur es la cercanía a colegios nuevos de Salburua, ya sea el colegio Errekabarri Salburua de educación primaria o el nuevo colegio de educación secundaria de Salburua, a escasos 200 m del edificio.

Además de los colegios, el Edificio Salburua Sur se ubica muy cerca de todos los servicios de Salburua, el Centro Cívico junto al Parque del Este, el Centro de Salud de Salburua, la zona comercial de Bulevar de Salburua y el Centro Comercial con múltiples supermercados.

Con la llegada del tranvía a Salburua, y su parada junto al Centro Cívico de Salburua, el edificio queda muy bien conectado con el Centro Urbano, ya sea con transporte público o caminando.

letzte Änderung

Aufteilung

  • 2 Zimmer
  • Fläche 75 m2
  • Terrasse 12 m2
  • 2 Badezimmer
  • Küche mit Essplatz: No

Allgemeine Merkmale

  • Parkplatz
  • Ohne klimaanlage
  • Nummer des Stockwerks 3
  • Energieausweis :
    Consumo:
    G
    999 kW h m2 / año
    Emisiones:
    G
    999 kg CO2 m2 / año

Gemeinschaftlich genutzte Austattung

  • Fahrstuhl
Inserat: 55410000000012

Lage

Salburua - Arantzabela Las Neveras Kalea 2

Karte anklicken, um sich darauf zu bewegen
295.000 € Preis des Inserats
3.005 €/m2€/m2 población
3.933 €/m2€/m2 des Inserats
Entwicklung €/m2 der Zone in Vitoria - Gasteiz
Sollen wir Ihnen mitteilen, wenn ein Inserat wie dieses veröffentlicht wird? Legen Sie Ihre Benachrichtigungen an und wir informieren Sie per E-Mail über neue und geänderte Inserate
 

Teil des Neubauprojekts Edificio Salburua Sur , Fase 2

Vitoria - Gasteiz - Las Neveras Kalea, 2
Promoción Edificio Salburua Sur , Fase 2 Vitoria - Gasteiz - Las Neveras Kalea, 2 von 195.000 € Projekt anzeigen
Andere Wohnungen dieses Projekts

Kontaktieren CONSTRUCCIONES FERNANDEZ DE NOGRARO

Referenz der Anzeige habitaclia/REF. 3ºB- 2 DORMITORIOS:

Die Telefonnummer wird angezeigt after sending your contact to the announcer to attend you.
Die Telefonnummer wird nach Kontakt angezeigt
Sending...