Bewertung gespeichert!
Diese Info sehen nur Sie
Kommentar gespeichert!
Fügen Sie eine bewertung bzw. Einen Kommentar zu dieser Anzeige hinzu. Nurfür Sie sichtbar

Etagenwohnung mit heizung in La Nova Esquerra de l´Eixample Barcelona

  • 120 m2
  • 2 hab.
  • 2 Badezimmer
  • 5.792 €/m2

IMPRESIONANTE PISO 6 ALTURA EN EL CORAZON DEL EIXAMPLE

Pi Properties investment les presenta esta propiedad con estilo, lista para entrar a vivir, en una de las zonas más codiciadas de la ciudad.

Ubicada en una magnífica finca regia con pocos vecinos combina a la perfección el estilo señorial con el carácter auténtico del Eixample Barcelonés.

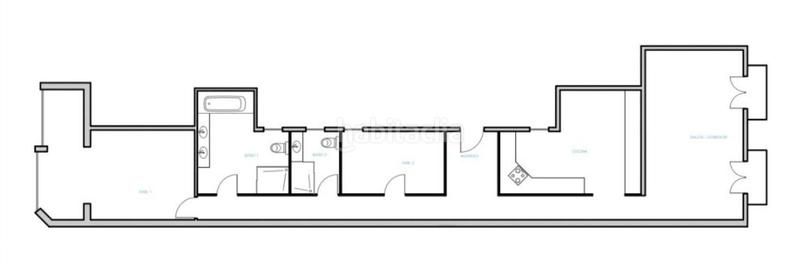
La vivienda tiene una superficie de 112 m² muy bien distribuidos. Dispone de calefacción por suelo radiante y aire acondicionado por conductos en todas las estancias, disfrutando así del máximo confort en cualquier estación del año.

Al entrar al salón nos sorprende la luz natural que inunda el amplio salón-comedor, gracias a sus dos balcones, siendo este un espacio abierto y acogedor, que invita a disfrutar tanto de momentos de calma como de reuniones inolvidables.

Los techos altos en toda la vivienda aportan una agradable sensación de amplitud, al igual que la perfecta distribución que optimiza cada rincón, haciéndola ideal para quien quiere vivir en un entorno con estilo.

La amplia cocina office completamente renovada, está totalmente equipada con electrodomésticos integrados facilitando de esta forma la vida diaria al tener una excelente zona amplia donde disfrutar de fantásticas comidas en familia

La zona de descanso dispone de dos baños exteriores completos con bañera , dos habitaciones dobles, una de ellas en suite con baño privado, vestidor y estudio ofreciendo una gran tranquilidad gracias a su amplio patio de manzana típico del Eixample perfecto para desconectar del bullicio y disfrutar del silencio.


Una oportunidad única de vivir Barcelona desde el corazón, en una vivienda que lo tiene todo: elegancia, funcionalidad y una ubicación simplemente inmejorable.

letzte Änderung

Aufteilung

  • 2 Zimmer
  • Fläche 120 m2
  • 2 Badezimmer
  • Küche mit Essplatz

Allgemeine Merkmale

  • Heizung
  • Klimaanlage
  • Baujahr 1930
  • In der Nähe von öffentlichen Verkehrsmitteln
  • Energieausweis :
    Consumo:
    E
    154 kW h m2 / año
    Emisiones:
    E
    56 kg CO2 m2 / año

Gemeinschaftlich genutzte Austattung

  • Fahrstuhl
Inserat: 27066000000616

Lage

La Nova Esquerra de l´Eixample

Karte anklicken, um sich darauf zu bewegen
695.000 € Preis des Inserats
6.913 €/m2€/m2 distrito
5.792 €/m2€/m2 des Inserats
16% billiger als Durchschnitt*
Entwicklung €/m2 der Zone in Barcelona (Eixample)
Sollen wir Ihnen mitteilen, wenn ein Inserat wie dieses veröffentlicht wird? Legen Sie Ihre Benachrichtigungen an und wir informieren Sie per E-Mail über neue und geänderte Inserate
 

Kontaktieren PI PROPERTIES INVESTMENT

Referenz der Anzeige habitaclia/B1663:

Die Telefonnummer wird angezeigt after sending your contact to the announcer to attend you.
Die Telefonnummer wird nach Kontakt angezeigt
Sending...