Bewertung gespeichert!
Diese Info sehen nur Sie
Kommentar gespeichert!
Fügen Sie eine bewertung bzw. Einen Kommentar zu dieser Anzeige hinzu. Nurfür Sie sichtbar

Etagenwohnung in La Salut Badalona

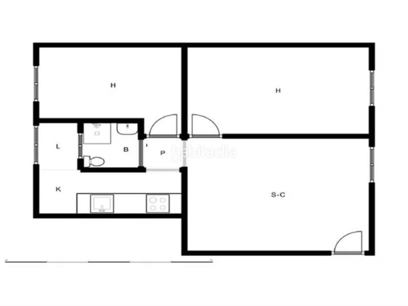
  • 40 m2
  • 2 hab.
  • 1 Badezimmer
  • 1.838 €/m2

Piso en venta en La SalutLloredaSistrells08914

ALQUILADO: oportunidad de inversión Actualmente, no es posible realizar visitas al interior del inmueble. Las fotografías pueden no reflejar el estado actual de la propiedad. Fecha de fin de contrato: 07/2029

Cómodo piso en Badalona, Barcelona, perfecto para parejas. La vivienda consta de 40 m² construidos distribuidos en 2 habitaciones, salón-comedor, cocina además de 1 aseo. Localizado en el corazón de Badalona, en sus alrededores encontramos el Ambulatori CAP de Llefià, la Escola Ítaca, supermercados, bancos, bibliotecas, farmacias, oficinas de correos, centros deportivos, paradas de autobús y la estación de metro La Salut. Con fácil acceso a C-31.

letzte Änderung

Aufteilung

  • 2 Zimmer
  • Fläche 40 m2
  • 1 Badezimmer

Allgemeine Merkmale

  • Nummer des Stockwerks 5
  • Energieausweis :
    Consumo:
    G
    999 kW h m2 / año
    Emisiones:
    G
    999 kg CO2 m2 / año
Inserat: 3754003240500

Lage

La Salut Joan Valera

Karte anklicken, um sich darauf zu bewegen
73.500 € Preis des Inserats
2.103 €/m2€/m2 distrito
1.838 €/m2€/m2 des Inserats
13% billiger als Durchschnitt*
Entwicklung €/m2 der Zone in Badalona (Salut - Lloreda)
Sollen wir Ihnen mitteilen, wenn ein Inserat wie dieses veröffentlicht wird? Legen Sie Ihre Benachrichtigungen an und wir informieren Sie per E-Mail über neue und geänderte Inserate
 

Kontaktieren 130 SERVEIS IMMOBILIARIS

Referenz der Anzeige habitaclia/ALQUILADO-ANT00030672934:

Die Telefonnummer wird angezeigt after sending your contact to the announcer to attend you.
Die Telefonnummer wird nach Kontakt angezeigt
Sending...