Bewertung gespeichert!
Diese Info sehen nur Sie
Kommentar gespeichert!
Fügen Sie eine bewertung bzw. Einen Kommentar zu dieser Anzeige hinzu. Nurfür Sie sichtbar
350.000 € Benachrichtigen, wenn sinkt
ist gesunken 35.000 €

Erdgeschoss in El Puerto Roquetas de Mar

  • 220 m2
  • 7 hab.
  • 1 Badezimmer
  • 1.591 €/m2

¡Gran oportunidad a menos de 300 metros del mar! Espacio amplio, versátil e ideal para inversión
A solo unos pasos de la playa, el paseo marítimo y el puerto deportivo, presentamos este amplio inmueble con una ubicación privilegiada, ideal para quienes buscan invertir o transformar un espacio único en el corazón de la ciudad.

Situado en planta baja y con una superficie de 220 m², este piso se encuentra a escasos metros de la Avenida Carlos III, rodeado de todos los servicios: comercios, supermercados, centro de salud, transporte... ¡una zona con vida y proyección!

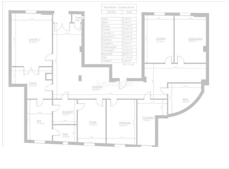
Su última actividad fue un centro médico, por lo que actualmente está distribuido en: hall de entrada, un aseo, un baño completo,cocina y siete estancias o consultas, además de contar con dos accesos independientes, uno desde la calle y otro desde el interior del edificio.

Un inmueble lleno de posibilidades: desde convertirlo en una gran vivienda familiar, un espacio para coliving, un coworking moderno, consultas médicas, despachos profesionales o cualquier proyecto que requiera metros, visibilidad y buena ubicación.

Una oportunidad difícil de encontrar en esta zona. ¿La vas a dejar pasar? Llámanos y ven a descubrir su potencial.

Precio Actual + Impuestos = 374.500 € (aplicando un 7% ITP).
Este precio no incluye gastos de notari´a y registrales.
El tipo de impuesto aplicado es el ma´s alto, pudiendo el comprador, por sus caracteri´sticas personales, beneficiarse de algunas deducciones fiscales.
El tipo de valor imponible puede variar en función de la nueva normativa desde el 01/01/2022 de la Dirección General de Catastro.
Tiene disponible en nuestra oficina el D. I. A. de la vivienda.

letzte Änderung

Aufteilung

  • 7 Zimmer
  • Fläche 220 m2
  • 1 Badezimmer

Allgemeine Merkmale

  • Baujahr 1999
  • In der Nähe von öffentlichen Verkehrsmitteln
  • Energieausweis :
    Consumo:
    E
    87 kW h m2 / año
    Emisiones:
    E
    16 kg CO2 m2 / año

Gemeinschaftlich genutzte Austattung

  • Fahrstuhl
Inserat: 24818000001081

Lage

El Puerto ISLAS AZORES(AS)

Karte anklicken, um sich darauf zu bewegen
350.000 € Preis des Inserats
1.956 €/m2€/m2 distrito
1.591 €/m2€/m2 des Inserats
19% billiger als Durchschnitt*
Entwicklung €/m2 der Zone in Roquetas de Mar (Aguadulce)
Sollen wir Ihnen mitteilen, wenn ein Inserat wie dieses veröffentlicht wird? Legen Sie Ihre Benachrichtigungen an und wir informieren Sie per E-Mail über neue und geänderte Inserate
 

Kontaktieren Grupo REMAX Solución

Referenz der Anzeige habitaclia/341305237:

Die Telefonnummer wird angezeigt after sending your contact to the announcer to attend you.
Die Telefonnummer wird nach Kontakt angezeigt
Sending...