Bewertung gespeichert!
Diese Info sehen nur Sie
Kommentar gespeichert!
Fügen Sie eine bewertung bzw. Einen Kommentar zu dieser Anzeige hinzu. Nurfür Sie sichtbar
Günstiges Angebot 390.000 € Benachrichtigen, wenn sinkt

Erdgeschoss in Son Espanyolet Palma de Mallorca

  • 80 m2
  • 2 hab.
  • 1 Badezimmer
  • 4.875 €/m2

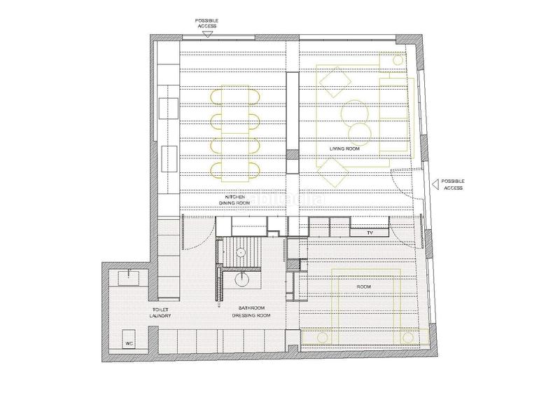
Proyecto de apartamento con estilo y posibilidades infinitas en Son Espanyolet

Ubicado en la tranquila zona residencial de Son Espanyolet, este proyecto de apartamento de 80 m² ofrece un espacio de vida luminoso y cómodo, con abundante luz natural. Diseñado con flexibilidad en mente, el plano permite elegir entre un amplio loft de un dormitorio o una configuración de dos dormitorios, según tus necesidades.

El proyecto de diseño interior incluye suelos de madera de roble en un elegante patrón de espiga en el dormitorio y vestidor, aportando calidez y sofisticación al ambiente. El baño está dividido en espacios separados para ofrecer mayor privacidad. La sala de estar se conecta de forma abierta con la cocina y el comedor, separados por una estantería moderna que mantiene la fluidez del espacio y añade un toque decorativo.

Importante: las imágenes mostradas son renders que representan el diseño propuesto de la vivienda renovada. Se trata de un proyecto, no del estado actual del apartamento. Existe la posibilidad de ofrecer la versión terminada por separado. Contáctanos para más información.

letzte Änderung

Aufteilung

  • 2 Zimmer
  • Fläche 80 m2
  • 1 Badezimmer

Allgemeine Merkmale

  • Ohne parkplatz
  • Ohne klimaanlage
  • Energieausweis :
    Consumo:
    G
    999 kW h m2 / año
    Emisiones:
    G
    999 kg CO2 m2 / año

Gemeinschaftlich genutzte Austattung

  • Ohne fahrstuhl
Inserat: 12930004414982

Lage

Son Espanyolet

Karte anklicken, um sich darauf zu bewegen
390.000 € Preis des Inserats
6.632 €/m2€/m2 distrito
4.875 €/m2€/m2 des Inserats
26% billiger als Durchschnitt*
Entwicklung €/m2 der Zone in Palma de Mallorca (Ponent)
Sollen wir Ihnen mitteilen, wenn ein Inserat wie dieses veröffentlicht wird? Legen Sie Ihre Benachrichtigungen an und wir informieren Sie per E-Mail über neue und geänderte Inserate
 

Kontaktieren SYNERGY HOMES

Referenz der Anzeige habitaclia/SHM3543:

Die Telefonnummer wird angezeigt after sending your contact to the announcer to attend you.
Die Telefonnummer wird nach Kontakt angezeigt
Sending...