Bewertung gespeichert!
Diese Info sehen nur Sie
Kommentar gespeichert!
Fügen Sie eine bewertung bzw. Einen Kommentar zu dieser Anzeige hinzu. Nurfür Sie sichtbar
Günstiges Angebot 265.000 € Benachrichtigen, wenn sinkt
ist gesunken 5.000 €

Erdgeschoss in Morera Badalona

  • 225 m2
  • 3 hab.
  • 2 Badezimmer
  • 1.178 €/m2

Local para cambio de uso a vivienda

Local para cambio de uso a vivienda . Compra de local +proyecto cambio de uso+licencia de obras (270.000€) Rehabilitación y reforma no incluidos a cargo del comprador.

Avenida Bac de Roda, Morera; local 225m² cambio de uso en vivienda.

Proyecto de cambio de uso incluido. Planos-arquitectura-autocad-etc.
Venta inmediata.
LAS FOTOS DE COCINA Y BAÑO SON RENDERS, PROYECTOS
Una vez adquirida la pieza, ofrecemos; rehabilitación-reforma
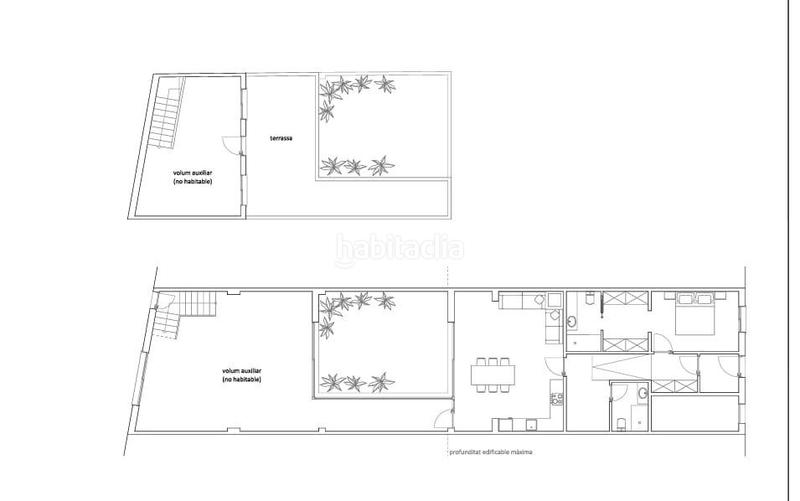
3 habitaciones dobles (una de ellas suite) 2 baños y un aseo. Patio terraza.
Con acceso ó salida a jardines privados comunidad vecin@s también.

Local en venta de dos plantas con proyecto aprobado para cambio de uso incluido en el precio.
Superficie total 225 m², local estado conservación: a reformar, nivel energético de emisiones: d, 20, nivel energético de consumo: d, 90.

Se ofrece dirección de obra, rehabilitación y reformas completas. Accesos, etc.
Gastos y honorarios no incluidos.
Global Invest EJD le acompañará, ayudará y asesorará en todo el proceso de compra teniendo en cuenta sus necesidades, ya sean hipotecas, préstamos, reformas, gestión de alquileres o cualquier otra cuestión, facilitándole todos los pasos en la compraventa del inmueble.

letzte Änderung

Aufteilung

  • 3 Zimmer
  • Fläche 225 m2
  • Terrasse 45 m2
  • 2 Badezimmer

Allgemeine Merkmale

  • Energieausweis :
    Consumo:
    D
    82 kW h m2 / año
    Emisiones:
    D
    20 kg CO2 m2 / año
Inserat: 12471004042778

Lage

Morera de Bac de Roda

Karte anklicken, um sich darauf zu bewegen
265.000 € Preis des Inserats
3.036 €/m2€/m2 distrito
1.178 €/m2€/m2 des Inserats
61% billiger als Durchschnitt*
Entwicklung €/m2 der Zone in Badalona (Bonavista - Bufalà - Morera)
Sollen wir Ihnen mitteilen, wenn ein Inserat wie dieses veröffentlicht wird? Legen Sie Ihre Benachrichtigungen an und wir informieren Sie per E-Mail über neue und geänderte Inserate
 

Kontaktieren GLOBAL INVEST

Referenz der Anzeige habitaclia/DPV198:

Die Telefonnummer wird angezeigt after sending your contact to the announcer to attend you.
Die Telefonnummer wird nach Kontakt angezeigt
Sending...