Bewertung gespeichert!
Diese Info sehen nur Sie
Kommentar gespeichert!
Fügen Sie eine bewertung bzw. Einen Kommentar zu dieser Anzeige hinzu. Nurfür Sie sichtbar

Erdgeschoss in calle costa daurada 19 in Cunit residencial Cunit

  • 192 m2
  • 3 hab.
  • 2 Badezimmer
  • 2.177 €/m2

PRECIOSAS PLANTAS BAJAS DE OBRA NUEVA

Si desea vivir en un entorno privilegiado cerca de todos los servicios no deje escapar esta oportunidad venga a visitar esta nueva construcción de un edificio plurifamiliar compuesto por 24 viviendas situado en la localidad de Cunit.
Este bloque de nueva construcción ha sido diseñado con un enfoque en la elegancia moderna. Cada piso ha sido meticulosamente diseñado para maximizar el espacio y la luz, creando un ambiente acogedor y atractivo y con los más altos estándares de calidad. Desde los acabados interiores hasta los electrodomésticos de alta gama, como cada pequeño detalle, garantizando la máxima satisfacción para del propietario.
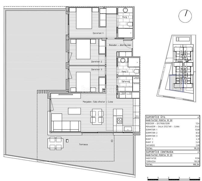
Con una superficie construida total de 192,24 m2 de vivienda, y 91,96 m2 construidos interior de vivienda se encuentra distribuidos 3 amplias habitaciones (1 de ellas suitte), salón comedor con cocina americana de 31,43 m2 totalmente equipada con todos los electrodomésticos, 2 baños completos, 1 lavadero con los electrodomésticos integrados de lavadora y secadora marca BALAY, recibidor, terraza de 100,28 m2, suelos porcelanamicos en toda la vivienda, carpintería exterior de aluminio de color gris claro de perfil eficiente y con rotura de puente térmico, carpintería interior con puertas correderas lacadas en blanco.
Además, contamos con zona comunitaria con piscina, ascensor y plazas de parking opcionales.
El entorno y municipio:
Cunit se encuentra situado en la comarca del Bajo Penedés y en la provincia de Tarragona aunque está incluido en la tercera corona de la región urbana de Barcelona. Limita con Segur de Calafell (localidad del municipio de Calafell), de la misma comarca, así como con Cubellas, en la comarca del Garraf, y Castellet y Gornal, en la comarca del Alto Penedés, ambos de la provincia de Barcelona.
Su paisaje es típicamente mediterráneo; desde los 2,5 km de playas de arena fina, protegidas por los espigones que le proporciona sus formas semicirculares características, pasando por las planicies agrícolas (denominadas Prats de Cunit i Plana del Castell) hasta las sierras del centro (Sierra de Sant Antoni) y norte del municipio, siendo parte de las últimas montañas de la sierra litoral catalana.


letzte Änderung

Aufteilung

  • 3 Zimmer
  • Fläche 192 m2
  • Terrasse 100 m2
  • 2 Badezimmer

Allgemeine Merkmale

  • Heizung
  • Parkplatz
  • Klimaanlage
  • In der Nähe von öffentlichen Verkehrsmitteln
  • Energieausweis :
    Consumo:
    C
    30 kW h m2 / año
    Emisiones:
    B
    5 kg CO2 m2 / año

Gemeinschaftlich genutzte Austattung

  • Fahrstuhl
  • Gemeinschaftsschwimmbad
Inserat: 12782003347386

Lage

Cunit Residencial Calle Costa Daurada 19

Karte anklicken, um sich darauf zu bewegen
418.000 € Preis des Inserats
2.618 €/m2€/m2 población
2.177 €/m2€/m2 des Inserats
17% billiger als Durchschnitt*
Entwicklung €/m2 der Zone in Cunit
Sollen wir Ihnen mitteilen, wenn ein Inserat wie dieses veröffentlicht wird? Legen Sie Ihre Benachrichtigungen an und wir informieren Sie per E-Mail über neue und geänderte Inserate
 

Kontaktieren Hogar Dulce Hogar

Referenz der Anzeige habitaclia/2937ON-19:

Die Telefonnummer wird angezeigt after sending your contact to the announcer to attend you.
Die Telefonnummer wird nach Kontakt angezeigt
Sending...