Bewertung gespeichert!
Diese Info sehen nur Sie
Kommentar gespeichert!
Fügen Sie eine bewertung bzw. Einen Kommentar zu dieser Anzeige hinzu. Nurfür Sie sichtbar

Dachwohnung mit heizung in Els Vilars d´Engordany Escaldes-Engordany

  • 163 m2
  • 3 hab.
  • 3 Badezimmer
  • 11.963 €/m2

Ático de obra nueva de 3 dormitorios con 16 m de terrazas en venta en Escaldes, Andorra

Lucas Fox se complace en presentar la promoción de obra nueva Residencial Marió, situada en Escaldes-Engordany, una zona que ofrece todo tipo de servicios, sin renunciar a la tranquilidad. Asimismo, dispone de una gran oferta de ocio, para disfrutar todo el año.

La vivienda recibe abundante luz natural durante el día, gracias a la estupenda orientación del edificio. Goza de un diseño moderno, en tonos neutros, y una distribución muy funcional.

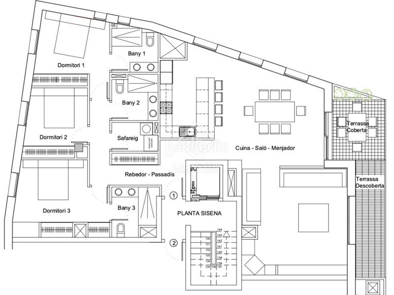
Esta vivienda cuenta con una superficie de 163 m² y 16 m² de zonas exteriores, distribuida en estancias amplias y luminosas. Consta de un recibidor que nos conduce a la zona de día, compuesta por una amplia y luminosa sala de estar, con acceso a una de las terrazas de 8 m². La zona de comedor es independiente, da acceso a otro balcón de 8 m² para disfrutar de los días soleados, y está conectada con la cocina semiabierta totalmente equipada y con barra de desayuno. En la zona de noche, se ofrecen tres dormitorios dobles con armarios empotrados, dos de ellos con baño privado. La vivienda se completa con una estancia para la lavandería y un cuarto de baño completo.

En cuanto a sus calidades, presenta acabados y calidades de lujo, como suelo de gres, ventanas de aluminio Technal con rotura de puente térmico y persianas motorizadas. Los baños cuentan con sanitarios Roca y la cocina de la marca Siematic incluye electrodomésticos de la marca Frankie. Finalmente, para un confort total, dispone de un sistema de aerotermia para alimentar la calefacción por suelo radiante y aire acondicionado por splits con bomba de calor.

Esta promoción ofrece la oportunidad de adquirir una plaza de aparcamiento y un trastero, ideales para optimizar al máximo el espacio de su vivienda. Todas las plantas quedan conectadas por ascensores de la marca Schindler. Exclusividad y confort definen esta promoción de obra nueva que ofrecerá un nuevo concepto de vida urbana a sus futuros propietarios.

Todos los pagos realizados a la promotora hasta la entrega de las viviendas estarán garantizados mediante un aval bancario.

Póngase en contacto con nosotros para más información sobre este piso de lujo a estrenar.

letzte Änderung

Aufteilung

  • 3 Zimmer
  • Fläche 163 m2
  • 3 Badezimmer
  • Waschküche

Allgemeine Merkmale

  • Heizung
  • Energieausweis :
    Consumo:
    G
    999 kW h m2 / año
    Emisiones:
    G
    999 kg CO2 m2 / año
Inserat: 4975004332733

Lage

Els Vilars d´Engordany

Karte anklicken, um sich darauf zu bewegen
1.950.000 € Preis des Inserats
8.186 €/m2€/m2 población
11.963 €/m2€/m2 des Inserats
Entwicklung €/m2 der Zone in Escaldes-Engordany
Sollen wir Ihnen mitteilen, wenn ein Inserat wie dieses veröffentlicht wird? Legen Sie Ihre Benachrichtigungen an und wir informieren Sie per E-Mail über neue und geänderte Inserate
 

Kontaktieren Lucas Fox Andorra

Referenz der Anzeige habitaclia/AND38735:

Die Telefonnummer wird angezeigt after sending your contact to the announcer to attend you.
Die Telefonnummer wird nach Kontakt angezeigt
Sending...