Favorito y comentario
Chalet in pablo picasso 0 in Quart de Poblet
Main characteristics
- 129 m2
- 4 hab.
- 1 Badezimmer
- 698 €/m2
Detailed information
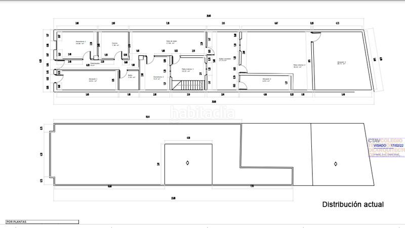
VIVIENDA PARA REHABILITAR
MIES INMOBILIARIA VENDE EN EXCLUSIVA - ESTUPENDA VIVIENDA PARA REHABILITAR CON 129 m2 CONSTRUIDOS EN UNA PARCELA DE 171m2 EN UNA DE LAS MEJORES ZONAS DEL BARRIO DEL CRISTO en QUART DE POBLET.Si estas pensado en hacerte una casa a tu gusto, muy cerca de Valencia, esta es tu oportunidad. Te presentamos una vivienda para rehabilitar de 129m2 construidos en este momento, sobre una parcela de 171m2. La vivienda en este momento cuenta con 4 habitaciones, un amplio salón comedor, cocina y cuarto de baño. Una estupenda terraza en planta baja y otra en la planta superior.Se puede rehabilitar o si se prefiera realizar obra nueva. El inmueble dispone de proyecto visado para derribo y planos de distribución de propuesta nueva.El inmueble se encuentra ubicado en una de las mejores zonas de barrio del Cristo, en Quart de Poblet, ya que esta muy cerca del centro de la población, donde encontramos todos los servicios, Ayuntamiento, Policial, parada de autobús, Polideportivo con una de las mejores piscinas de la zona y el estupendo centro comercial Bonaire a menos de 2 minutos accediendo por la Autovía A3. Y a escasos 5 minutos de Valencia.No pierdas la oportunidad de ver esta vivienda con una magnifica parcela para realizar la vivienda de tu sueñosPor mandato expreso del propietario comercializamos este inmueble mediante contrato de exclusiva o multiexclusiva, por el cual numerosas agencias colaboradoras, nacionales e internacionales, ofrecen esta vivienda a sus potenciales compradores, todo ello garantizando un servicio de calidad, un trato fácil, sencillo y sin interferencias de terceros. Por este motivo, se ruega no molestar al propietario, a los ocupantes de la propiedad, a los vecinos o conserjes del edificio o urbanización si los hubiera. Muchas gracias por su comprensión. La descripción del presente inmueble e imágenes se muestran a título informativo y en ningún caso tiene carácter contractual, pudiendo ser modificados por la agencia inmobiliaria sin que ello implique responsabilidad alguna frente a terceros. El PVP indicado no incluye impuestos, honorarios, ni gastos de Escritura
letzte Änderung
Aufteilung
- 4 Zimmer
- Fläche 129 m2
- Gelände 171 m2
- 1 Badezimmer
- Abstellraum
Allgemeine Merkmale
- möbliert
- Baujahr 1955
Gallery
Lage
PABLO PICASSO 0
