Bewertung gespeichert!
Diese Info sehen nur Sie
Kommentar gespeichert!
Fügen Sie eine bewertung bzw. Einen Kommentar zu dieser Anzeige hinzu. Nurfür Sie sichtbar

Chalet mit heizung parking pool in Benimeit-Tabaira Moraira

  • 574 m2
  • 3 hab.
  • 3 Badezimmer
  • 2.082 €/m2

EN PROYECTO


Descripción del Proyecto



Este exclusivo proyecto se encuentra en una parcela tranquila y privada, ideal para quienes valoran la paz y la privacidad sin renunciar a la comodidad de estar cerca de todos los servicios. Gracias a su orientación perfecta, la villa disfruta de luz natural todo el día, iluminando cada rincón de la vivienda.


Ubicada a solo 2,5 km del centro de Moraira, a 2 km del supermercado Pepe La Sal y a 3,3 km de la playa, esta propiedad combina la privacidad con una excelente proximidad a todo lo que necesitas.


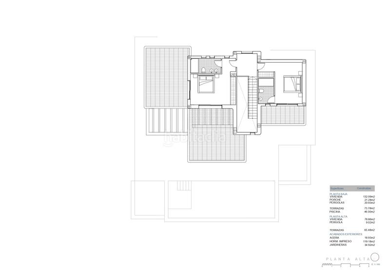
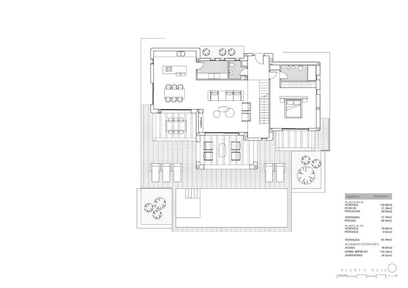
Distribución






Planta Baja: Al entrar, te recibe un espacioso salón con comedor y una cocina completamente equipada, además de un baño de cortesía. Esta planta también cuenta con una habitación con baño en suite. En el exterior, disfrutarás de una terraza con piscina, una pérgola que ofrece sombra y un espacio ideal para relajarse y disfrutar del clima.
Planta Alta: En esta planta se sitúan dos amplios dormitorios, cada uno con baño en suite, ofreciendo comodidad y privacidad para cada miembro de la familia o invitados.


Equipamiento



La villa incluye cocina totalmente equipada, calefacción por suelo radiante, aire acondicionado, portón automático para entrada de coches con control remoto y puerta peatonal automática, garantizando un acceso cómodo y seguro.


La construcción de la villa se completará en un plazo de 14 a 16 meses desde el inicio de las obras.


Esta villa es una opción ideal para quienes buscan un hogar en una ubicación privilegiada, con un diseño funcional y una distribución pensada para disfrutar del confort y la tranquilidad en un entorno soleado. ¡Contáctanos para más información o para organizar una visita!

letzte Änderung

Aufteilung

  • 3 Zimmer
  • Fläche 574 m2
  • Gelände 1964 m2
  • 3 Badezimmer
  • Abstellraum

Allgemeine Merkmale

  • Heizung
  • Privates Schwimmbad
  • Parkplatz
  • Klimaanlage
  • Energieausweis :
    Consumo:
    G
    999 kW h m2 / año
    Emisiones:
    G
    999 kg CO2 m2 / año
Inserat: 52627000000027

Lage

Benimeit-Tabaira

Karte anklicken, um sich darauf zu bewegen
1.195.000 € Preis des Inserats
4.311 €/m2€/m2 población
2.082 €/m2€/m2 des Inserats
52% billiger als Durchschnitt*
Wie viel würdest Du bezahlen?
Entwicklung €/m2 der Zone in Moraira
Sollen wir Ihnen mitteilen, wenn ein Inserat wie dieses veröffentlicht wird? Legen Sie Ihre Benachrichtigungen an und wir informieren Sie per E-Mail über neue und geänderte Inserate
 

Kontaktieren Gh Costablanca

Referenz der Anzeige habitaclia/VD50219:

Die Telefonnummer wird angezeigt after sending your contact to the announcer to attend you.
Die Telefonnummer wird nach Kontakt angezeigt
Sending...