Favorito y comentario
Chalet mit heizung parking pool in San Crispín-Huerta Nueva-Estación Elda
Main characteristics
- 409 m2
- 4 hab.
- 2 Badezimmer
- 1.000 €/m2
Detailed information
ESTUPENDO CHALET RODEADO DE TRANQUILIDAD Y NATURALEZA ENTRE ELDA Y SAX ALICANTE
Ubicado en un enclave privilegiado de Sax, este espectacular chalet independiente combina a la perfección el confort moderno con la tranquilidad de la naturaleza. Con ?? impresionantes vistas panorámicas al valle y las montañas, esta propiedad es ideal para quienes buscan un refugio exclusivo en la soleada Costa Blanca, a tan solo unos minutos de Alicante y sus hermosas playas ???.
La vivienda, con ?? 409 m² construidos, ha sido diseñada para ofrecer amplitud y comodidad en cada rincón. Dispone de ??? cuatro amplios dormitorios dobles, perfectos para el descanso, y ?? dos baños completos que combinan elegancia y funcionalidad. El corazón de la casa es su ?? gran salón-comedor con chimenea, un espacio acogedor donde relajarse en cualquier época del año, complementado con ??? calefacción central y ?? aire acondicionado para garantizar el máximo confort. La ??? cocina office, moderna y bien equipada, facilita la vida diaria con un toque de estilo y practicidad.
El exterior de la propiedad es un verdadero paraíso. Sobre una extensa ?? parcela de 4.500 m², la vivienda cuenta con una ?? magnífica piscina privada, rodeada de zonas ajardinadas que invitan al relax y la desconexión. Para los amantes de la vida al aire libre, la propiedad dispone de ?? un área de barbacoa ideal para disfrutar con amigos y familia, además de un ?? amplio parking con capacidad para cuatro vehículos.
Este chalet es una ?? oportunidad única para quienes buscan una residencia permanente o una casa de vacaciones en un entorno natural incomparable, con ??? fácil acceso a servicios, comercios y las principales conexiones de transporte.
Si sueñas con una propiedad que combine espacio, privacidad y unas vistas espectaculares esta es tu oportunidad ?. ?? No dudes en contactarnos para más información o concertar una visita. ¡Tu nuevo hogar en España te espera!
* Precios sin honorarios de agencia al comprador.
** Impuestos, gastos de compraventa y financiación no incluidos.
*** Mobiliarios, decoración, electrodomésticos y vehículos que puedan salir en fotos o video, no incluidos en el precio.
****Este anuncio puede contener errores, se muestra a título informativo de la información recibida, sin ser responsable la inmobiliaria de dichas erratas.
letzte Änderung
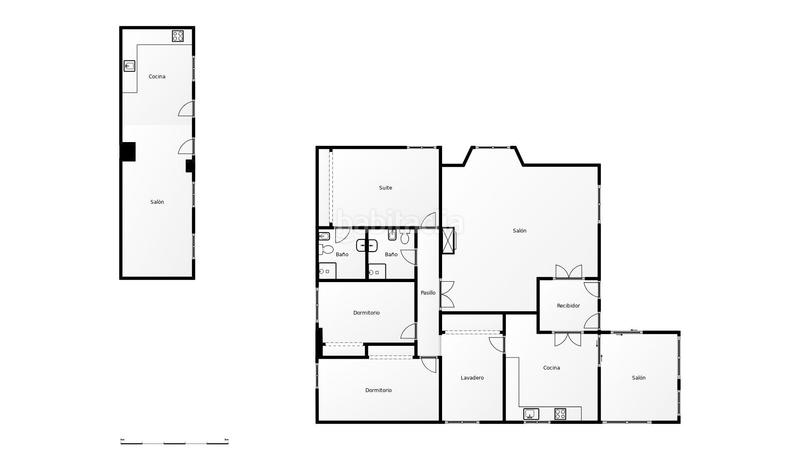
Aufteilung
- 4 Zimmer
- Fläche 409 m2
- Terrasse 20 m2
- Gelände 4500 m2
- 2 Badezimmer
- Küche mit Essplatz
- Abstellraum
Allgemeine Merkmale
- Heizung
- Privates Schwimmbad
- Parkplatz
- Klimaanlage
- Baujahr 1980
- In der Nähe von öffentlichen Verkehrsmitteln
Gallery
Lage
San Crispín-Huerta Nueva-Estación Partida SAX IZQUIERDA
