Bewertung gespeichert!
Diese Info sehen nur Sie
Kommentar gespeichert!
Fügen Sie eine bewertung bzw. Einen Kommentar zu dieser Anzeige hinzu. Nurfür Sie sichtbar
600.000 € Benachrichtigen, wenn sinkt
ist gesunken 36.000 €

Chalet mit parking in Bacarés-Manresa-Bonaire Alcúdia

  • 112 m2
  • 3 hab.
  • 2 Badezimmer
  • 5.357 €/m2

Encantador chalet en esquina en Bonaire Alcudia

En la prestigiosa zona residencial de Bonaire, presentamos esta propiedad única que combina comodidad, privacidad y estilo mediterráneo.
112 m² construidos sobre una generosa parcela de 476 m², perfectamente diseñada en una sola planta para mayor confort.
Al entrar, una elegante entrada de marés nos invita a descubrir un salón-comedor lleno de luz natural, conectado con la cocina independiente. Desde aquí accedemos a una amplia terraza cubierta, ideal para disfrutar de reuniones familiares o cenas al aire libre durante todo el año.

La vivienda dispone de tres dormitorios exteriores y dos baños completos, distribuidos de forma práctica para garantizar la comodidad de toda la familia.

Reformas y extras destacados:
Fontanería y electricidad renovadas en 2019.
Aire acondicionado en varias estancias.
Excelente orientación y luminosidad en todos los dormitorios.
Posibilidad de ampliar 35 m² en planta baja y 20 m² en la terraza superior.

Exterior pensado para disfrutar:
Jardín cuidado que rodea la casa, ofreciendo privacidad.
Zona de barbacoa para celebraciones.
Garaje propio.
Terraza solárium con vistas, perfecta para relajarse o tomar el sol.

Ubicación:
Bonaire, una de las zonas más exclusivas de Mallorca, situada en Alcudia, rodeada de naturaleza, playas paradisíacas y con todos los servicios a tu alcance.

Lista para entrar a vivir.
Una oportunidad única, tanto para residencia habitual como para casa de vacaciones, con el valor añadido de poder ampliarla según tus necesidades.

Contacta con INMOCLAUS – Servicios Inmobiliarios.

Te acompañamos en todo el proceso con asesoramiento profesional y personalizado.

letzte Änderung

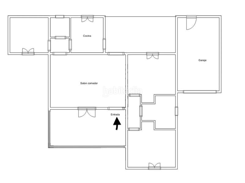
Aufteilung

  • 3 Zimmer
  • Fläche 112 m2
  • Gelände 476 m2
  • 2 Badezimmer

Allgemeine Merkmale

  • Parkplatz
  • Baujahr 1980
  • Energieausweis :
    Consumo:
    G
    999 kW h m2 / año
    Emisiones:
    G
    999 kg CO2 m2 / año
Inserat: 46863000000203

Lage

Bacarés-Manresa-Bonaire CAMPANETA, DE LA

Karte anklicken, um sich darauf zu bewegen
600.000 € Preis des Inserats
4.346 €/m2€/m2 población
5.357 €/m2€/m2 des Inserats
Entwicklung €/m2 der Zone in Alcúdia
Sollen wir Ihnen mitteilen, wenn ein Inserat wie dieses veröffentlicht wird? Legen Sie Ihre Benachrichtigungen an und wir informieren Sie per E-Mail über neue und geänderte Inserate
 

Kontaktieren INMOCLAUS

Referenz der Anzeige habitaclia/P002220:

Die Telefonnummer wird angezeigt after sending your contact to the announcer to attend you.
Die Telefonnummer wird nach Kontakt angezeigt
Sending...