Bewertung gespeichert!
Diese Info sehen nur Sie
Kommentar gespeichert!
Fügen Sie eine bewertung bzw. Einen Kommentar zu dieser Anzeige hinzu. Nurfür Sie sichtbar

Büro in Dreta de l´Eixample Barcelona

  • 434 m2
  • 2 Badezimmer
  • 3.226 €/m2

OFICINA EN EL CENTRO DE BARCELONA, IDEAL PARA CENTROS MÉDICOS, LABORATORIOS O NEGOCIOS DE PRESTIGIO

IDEAL PARA CENTROS MÉDICOS, LABORATORIOS O NEGOCIOS DE PRESTIGIO.

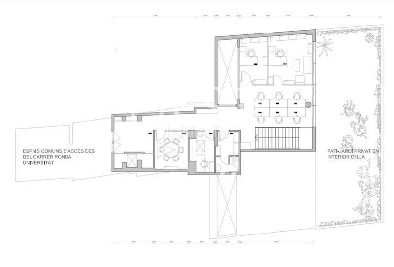
Oficinas exclusivas en el corazón de Barcelona. Planta baja a pie de calle ideal para centros médicos, laboratorios, agencias de publicidad, despachos de arquitectura, bufetes de abogados, etc.

Ubicadas en una de las zonas más codiciadas del centro de Barcelona, estas oficinas en planta baja ofrecen una combinación perfecta de funcionalidad, elegancia y tranquilidad. Con excelentes conexiones de transporte y rodeadas de todos los servicios, representan una oportunidad única en una ubicación estratégica.

Superficie total de 434 m² distribuidos en:

Planta baja: 158 m²

Planta sótano: 251 m²

Elementos comunes: 25 m²

El inmueble forma parte de un edificio histórico con gran carácter, al que se accede a través de un vestíbulo señorial que transmite una imagen corporativa sólida y distinguida. Al no contar con fachada directa a la calle, garantiza máxima privacidad y discreción, ideal para empresas que valoran un entorno tranquilo dentro del dinamismo urbano.

Uno de los grandes atractivos del espacio es su encantador patio interior ajardinado: un auténtico oasis de calma que proporciona luz natural y confort a las zonas de trabajo.

La propiedad se encuentra en excelente estado de conservación y lista para entrar.

Una oportunidad excepcional para empresas o inversores que buscan estabilidad, ubicación estratégica y alto potencial de revalorización.

letzte Änderung

Aufteilung

  • Fläche 434 m2
  • Terrasse 100 m2

Allgemeine Merkmale

  • Ohne parkplatz
  • Klimaanlage
  • Baujahr 1998
  • Energieausweis :
    Consumo:
    C
    7 kW h m2 / año
    Emisiones:
    C
    37 kg CO2 m2 / año

Gemeinschaftlich genutzte Austattung

  • Fahrstuhl
Inserat: 48435000000159

Lage

Dreta de l´Eixample Ronda de la Universitat

Karte anklicken, um sich darauf zu bewegen
Sollen wir Ihnen mitteilen, wenn ein Inserat wie dieses veröffentlicht wird? Legen Sie Ihre Benachrichtigungen an und wir informieren Sie per E-Mail über neue und geänderte Inserate
 

Kontaktieren HEST Properties

Referenz der Anzeige habitaclia/H100179-RE:

Die Telefonnummer wird angezeigt after sending your contact to the announcer to attend you.
Die Telefonnummer wird nach Kontakt angezeigt
Sending...