Virtueller Besuch
Bewertung gespeichert!
Diese Info sehen nur Sie
Kommentar gespeichert!
Fügen Sie eine bewertung bzw. Einen Kommentar zu dieser Anzeige hinzu. Nurfür Sie sichtbar

Büro in calle de cervantes 10 in Centro - Ayuntamiento Santander

  • 326 m2
  • 1.626 €/m2

Oficina en venta con 326 m2 construidos en Santander centro, calle Cervantes. Oportunidad.

Costa Norte Real Estate pone a la venta esta espectacular Oficina de 326m² en una 5ª planta, en pleno centro Santander (Cervantes). Exterior, con ascensor, calefacción, climatización, máxima representación institucional. ¡Inversión única!

En el corazón financiero y administrativo de Santander, se sitúa una verdadera oportunidad de inversión, en la histórica calle Cervantes. Esta propiedad, que fue la sede del Ilustre Colegio Oficial de Enfermería de Cantabria, asegura una ubicación de máxima representación institucional, a escasos metros del Ayuntamiento y perfectamente comunicada, destacando la comodidad de disponer de dos parkings públicos colindantes. El valor estratégico de este enclave se ve reforzado por el entorno circundante, que ofrece todo tipo de servicios al lado y acceso inmediato a comercios de primer nivel, hospitales de referencia, centros de salud, conjugando así la excelencia empresarial con el bienestar personal.

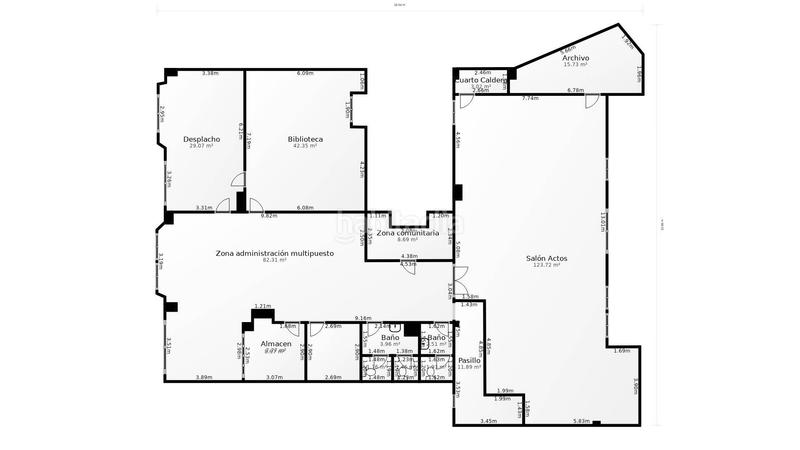
Ascendiendo a la quinta planta, el visitante accede a un espacio que abarca la totalidad del piso. Estos 326 m² construidos según catastro (270 m² comprobados) garantizan la privacidad, la exclusividad y una presencia imponente, diseñados para aprovechar al máximo la luz natural que inunda cada rincón gracias a su triple orientación (Sur, Este y Oeste). La calidad de la reforma realizada hace pocos años se manifiesta en sus suelos de madera, la carpintería exterior de PVC Climalit, que confiere un aislamiento acústico y térmico óptimo, y en las completas instalaciones eléctricas y de red con las que cuenta toda la oficina. La distribución interna, pensada para la operatividad de alto nivel, se inicia con una zona de recepción que da paso a una amplia área de administración configurable para múltiples puestos de trabajo, un despacho de dirección que asegura la máxima discreción y con acceso directo a una gran biblioteca, con muebles realizados a medida. El espacio culmina en un distinguido salón de actos diáfano, con dos alturas, equipado con domótica de última generación para el control integrado de iluminación, sistemas audiovisuales y persianas, creando el entorno perfecto para conferencias o grandes reuniones corporativas.
Además, la oficina dispone de ascensor, calefacción de gas natural y un sistema de aire acondicionado integral, junto con un área independiente de archivo, otra de almacén y dos aseos separados, cuidando el rigor y la comodidad en cada detalle.

Adquirir este inmueble es, por tanto, asegurar una inversión sólida y con proyección, capitalizando la historia de un uso prestigioso en uno de los mercados inmobiliarios más estables del Norte de España. Esta propiedad es la plataforma física ideal para el éxito de su próximo proyecto. Le invitamos a comprobar personalmente su potencial. Detrás de una simple llamada para concertar una visita, encontrará un equipo de profesionales de Costa Norte Real Estate, dedicados a guiarle de forma integral en el proceso de compra y, si fuera necesario, en la obtención de la financiación más ventajosa. La seriedad, la transparencia y la excelencia están a su servicio.

letzte Änderung

Aufteilung

  • Fläche 326 m2
  • Abstellraum

Allgemeine Merkmale

  • Heizung
  • Klimaanlage
  • Nummer des Stockwerks 5
  • Baujahr 1983
  • Energieausweis :
    Consumo:
    G
    999 kW h m2 / año
    Emisiones:
    G
    999 kg CO2 m2 / año

Gemeinschaftlich genutzte Austattung

  • Fahrstuhl
Inserat: 50576000000065

Lage

Centro - Ayuntamiento Calle de Cervantes 10

Karte anklicken, um sich darauf zu bewegen
Sollen wir Ihnen mitteilen, wenn ein Inserat wie dieses veröffentlicht wird? Legen Sie Ihre Benachrichtigungen an und wir informieren Sie per E-Mail über neue und geänderte Inserate
 

Kontaktieren Costa Norte Inmobiliaria

Referenz der Anzeige habitaclia/220006338:

Die Telefonnummer wird angezeigt after sending your contact to the announcer to attend you.
Die Telefonnummer wird nach Kontakt angezeigt
Sending...