Bewertung gespeichert!
Diese Info sehen nur Sie
Kommentar gespeichert!
Fügen Sie eine bewertung bzw. Einen Kommentar zu dieser Anzeige hinzu. Nurfür Sie sichtbar

Bauernhof in Ibdes

muertes

  • 238 m2
  • 4 hab.
  • 1 Badezimmer
  • 143 €/m2

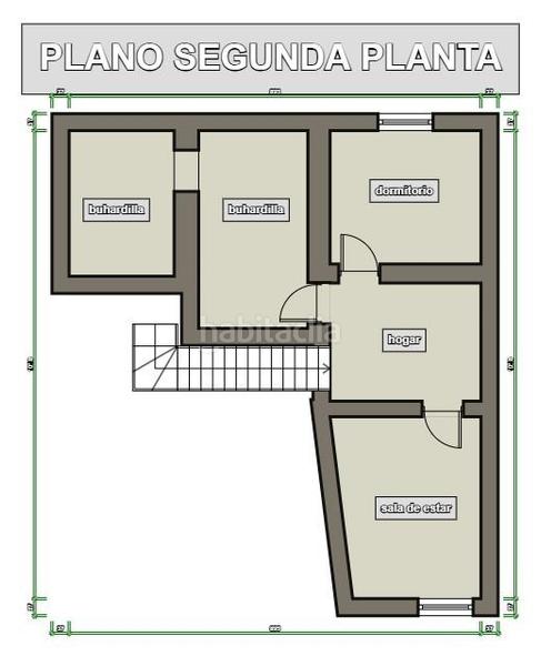
Cliente comprador exento de honorarios adicionales. !! Oferta ¡¡. Casa en venta de 238 m² construidos en el precioso municipio de Ibdes. El pueblo se encuentra en el triángulo turístico compuesto por el Monasterio de Piedra y los balnearios de Alhama de Aragón y Jaraba. Con uno de los patrimonios religiosos y culturales más importantes de la Comunidad de Calatayud, teniendo como ejemplo la Iglesia Parroquial de San Miguel Arcángel, de estilo gótico, la Ermita de San Miguel o la Ermita del Santo Sepulcro, así como su fascinante Gruta de las Maravillas, formada por estalactitas y estalagmitas de unos 50.000 años de antigüedad y gran interés turístico. Esta casa, ubicada en la zona de montaña del municipio, se compone de dos niveles más unos corrales o cuadras con un patio exterior en su zona inferior. En su planta a pie de calle, encontramos una cocina de la época, tres amplios dormitorios (uno de los mismos, doble), un cuarto de baño completo y el acceso a la planta superior. Ya en su segunda planta nos ofrece un Hogar con chimenea, un nuevo dormitorio, una estancia para disponer según necesidades y una buhardilla/granero utilizado a modo de almacén. Con unas mínimas reformas a modo de actualización, podemos disponer de una tranquila casa donde el bienestar y la tranquilidad forman parte del día a día de este magnífico enclave. Encontramos la financiación que necesitas [IW]

letzte Änderung

Aufteilung

  • 4 Zimmer
  • Fläche 238 m2
  • 1 Badezimmer
  • Abstellraum

Allgemeine Merkmale

  • Energieausweis :
    Consumo:
    G
    999 kW h m2 / año
    Emisiones:
    G
    999 kg CO2 m2 / año
Inserat: 24652000004560

Lage

muertes

Karte anklicken, um sich darauf zu bewegen
34.000 € Preis des Inserats
986 €/m2€/m2 comarca
143 €/m2€/m2 des Inserats
86% billiger als Durchschnitt*
Entwicklung €/m2 der Zone in Ibdes
Sollen wir Ihnen mitteilen, wenn ein Inserat wie dieses veröffentlicht wird? Legen Sie Ihre Benachrichtigungen an und wir informieren Sie per E-Mail über neue und geänderte Inserate
 

Kontaktieren INNOVA LM

Referenz der Anzeige habitaclia/g85:

Die Telefonnummer wird angezeigt after sending your contact to the announcer to attend you.
Die Telefonnummer wird nach Kontakt angezeigt
Sending...